KARMAT revízna šachta so spätnou klapkou DN400/160 x 4000mm komín
Kód produktu: K40P16ZB40
Dostupnosť: info v e-shope Môže byť aj skladom, preverte si prosím dostupnosť.
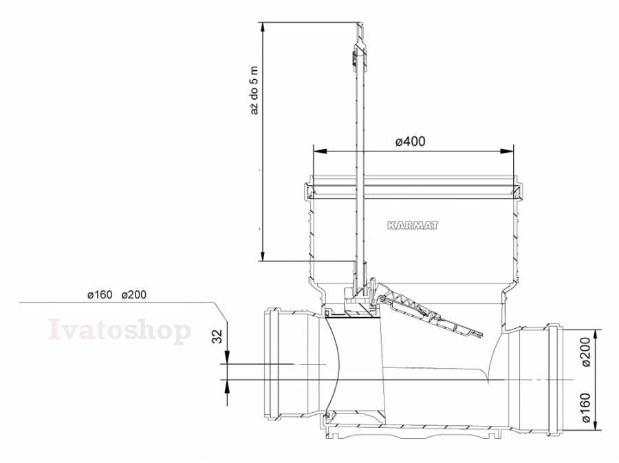
Šachtové dno KARMAT so spätnou klapkou je určené na napojenie z budov do hlavnej kanalizácie. Slúži k zabráneniu spätného chodu splaškov a pachov späť do potrubia a vniknutiu hlodavcov do systému. Klapka môže byť použitá aj ako revízna šachta, je vybavená teleskopickým systémom uzáveru. Revízna šachta je odporúčaná na trase kanalizácie každých 20 - 25m.
VÝHODY:
- zabezpečenie objektov pred zápachom, hlodavcami, prípadným zatopením z kanalizácie
- ovládanie klapky, alebo prípadná demontáž klapky je z povrchu bez nutnosti výkopových prác
- jednoduchá montáž, osadenie bez nutnosti použitia mechanizmov, alebo montážnej firmy
- napojenie cez hrdlo s gumeným tesnením zabezpečuje 100% tesnosť
- dlhá životnosť, vyrobené z kvalitného plastu, prítlačný tanier z nerezovej ocele
- odolnosť voči korózii, teplotám a chemickým zlúčeninám
- možnosť prispôsobiť výšku komína podľa potreby až do výšky 5 m
- veko šachty až do 7,5 t, zabezpečené dvomi šróbami proti krádeži
- výrobok spĺňa európsku normu a získal značku CE
REVÍZNA ŠACHTA OBSAHUJE:
- šachtové dno so spätnou klapkou
- komínový nástavec (kanalizačná rúra hladká DN400, dĺžka 4m)
- veko šachty, uchytenie 2 x šrób
- ovládacia tyč k spätnej klapke
DARČEK: 250 ml montážne mazivo !
Otázka na predajcu







































































































